Kurzbeschreibung
Bauplanung:2 freistehende, exklusive Schwedenhäuser, ruhige Sackgasse - Süd-/Waldrandlage
| Exposetyp: | Haus |
| Angebotstyp: | Verkauf |
| Standort: | 22397, Hamburg |
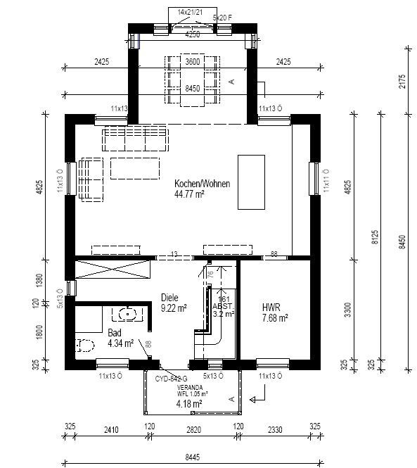
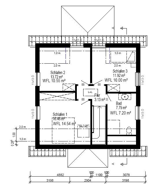
| Wohnfläche: | 126 m² |
| Zimmer: | 4 |
| Besonderheiten: | Stellplatz + Fußbodenheizung |
| Gebäude-Typ: | Einfamilienhaus |
| Gebäude-Baujahr: | 2025 |
| Grundstücks-Fläche: | 432 m² |
| Verkaufpreis: | 696.520,- EUR |
| zzgl. Baunebenkosten |
Bei diesem Bauprojekt handelt es sich um den Neubau von 3 modernen, exklusiven Schwedenhäusern.
Das Grundstück ist zum sofortigen Baubeginn vorbereitet. Bauzeit ca. 4 Monate.
Zur Hausausstattung gehören u.a. eine hervorragend gedämmte Schwedensohlplatte,
Luft-Wasser-Wärmepumpe, dezentrale Be-/Entlüftungsanlage, 2,5 KWp PV-Anlage, Fußbodenheizung im Erd- und ggf. Obergeschoss, 3fach verglaste Holz-/Aluminiumfenster, Kapitänsgaube, Eingangsveranda, Balkon, hochwertige Sanitärausstattung und viele weitere Annehmlichkeiten.
Die Lage ist sehr familienfreundlich, in einer ruhigen Sackgasse / Tempo 30-Zone direkt
am Waldrand, mit Naturschutzgebieten, Wiesen und Felder in unmittelbarer Nachbarschaft.
Erstellt werden auf einem fast 1.500m² großen, nach Süden orientierten Grundstück im vorderen Bereich zwei freistehende Einfamilienhäuser á 126m² Wohnfläche mit einem Grundstücksteil von 432m², und rückwärtig ein Einfamilienhaus mit 142m² Wohnfläche und einem Grundstücksteil von 594m²
Grundrisse, Farbgestaltung und Ausstattung werden nach Ihren Wünschen angepasst.
KOSTENÜBERSICHT
---------------------------
Schwedenhaus-EKSJÖHUS "EKENÄS", ca. 126m² Wohnfläche: € 285.900,-
Grundstück ca. 432m² inkl. Privatstraßen-/Zufahrtsanteil: € 357.507,-
Schwedensohlenplatte, Untersohlendämmung, Fußbodenheizung: € 30.506,-
Fußbodenheizung im OG: € 3.657,-
Mehrpreis: Tecalor Luft-Wasser-Wärmepumpe mit Kühlfunktion: € 19.750,-
Gebäude + Grundstückskosten: € 697.320,-
zzgl. Baunebenkosten/geschätzt: € 23.800,-
Schwedenhaus-EKSJÖHUS "KNUTSTORP, ca. 142m² Wohnfl.: € 299.000,-
Grundstück ca. 594m² inkl. Privatstraßen-/Zufahrtsanteil: € 491.624,-
Schwedensohlenplatte, Untersohlendämmung, Fußbodenheizung: € 33.148,-
Fußbodenheizung im OG: € 4.278,-
Mehrpreis: Tecalor Luft-Wasser-Wärmepumpe mit Kühlfunktion: € 19.750,-
Gebäude + Grundstückskosten: € 847.800,-
zzgl. Baunebenkosten/geschätzt: € 23.800,-
Sonstiges
-------------
Sanitärausstattung, Vollbad, Gästebad, Eingangsveranda mit Walmdach, große Kapitänsgaube, Gasbrennwerttherme, Dachfenster,Holz-/Alu-Sprossenfenster mit 3f-Verglasung uvm.: bereits im Preis enthalten.
Zusätzliche Sonderausstattung/Extras: nach sep. Liste/Absprache
5,5% Grunderwerbsteuer + 2% Notar-/Gerichtskosten: nur auf den Grundstückswert
Käufercourtage: entfällt
Eine detaillierte Baubeschreibung, Aufschlüsselung der Einzelpositionen, im Angebotspreis enthaltene Grundausstattung, mögliche Zusatzleistungen und Sonderzubehör übergeben wir Ihnen gern im Anschluss an eine gemeinsame Grundstücksbesichtigung.
Details
GfG Schwedenhäuser GmbH & Co. KG - Hamburg
GfG ist für die detaillierte Bauplanung, Projektleitung, Verkauf und Errichtung der Häuser verantwortlich. Das Unternehmen seit 30 Jahren Partner und Deutschland-Repräsentant des
1941 in Schweden gegründeten Familienunternehmens EKSJÖHUS, dass in 4. Generation
mit 280 geschulten Mitarbeitern und modernster Technologie für jährlich ca. 150 nachhaltige, ökologische Holzhäuser/Wohnungen bester Qualität herstellt. Das verwendete Holz stammt vorwiegend aus den eigenen PEFC und FSC zertifizierten Forstwirtschaften der Region.
Sonstiges
Sanitärausstattung, Vollbad, Gästebad, Eingangsveranda mit Walmdach, große Kapitänsgaube, Gasbrennwerttherme, Dachfenster,Holz-/Alu-Sprossenfenster mit 3f-Verglasung uvm.: bereits im Preis enthalten
zusätzlich Sonderausstattung/Extras: nach sep. Liste/Absprache
5,5% Grunderwerbsteuer + 2% Notar-/Gerichtskosten: nur auf den Grundstückswert
Käufercourtage: entfällt
Eine detaillierte Baubeschreibung, Aufschlüsselung der Einzelpositionen, im Angebotspreis enthaltene Grundausstattung, mögliche Zusatzleistungen und Sonderzubehör übergeben wir Ihnen gern im Anschluss an eine gemeinsame Grundstücksbesichtigung.
Lage
Das Grundstück in leichter Hanglage liegt im grünen, äußerst beliebten Hamburger Stadtteil Lemsahl-Mellingstedt, das zu den Hamburger Walddörfern gehört. Es befindet sich in einer ruhigen Anliegerstraße (Sackgasse / Tempo 30-Zone) mit attraktiven und gepflegten Einfamilienhäusern und liebevoll angelegten Grundstücken.
Nur einen Steinwurf entfernt liegt das Naturschutzgebiet Kupferteich, das mit dem
Wittmoor, dem Duvenstedter Brook, dem Wohldorfer Wald, dem Naturschutzgebiet
Rodenbeker Quellental und dem Alsterwanderweg verbunden ist.
Ein Edeka-Supermarkt befindet sich am nahegelegenen Tannenhof (ca. 1km). Weitere sehr gute Einkaufsmöglichkeiten finden sich im benachbarten Duvenstedt und am Poppenbütteler Markt. An der Lemsahler Landstraße (ca. 0,7km) befindet sich eine Bushaltestelle mit Anbindungen zum Alstertal-Einkaufszentrum und der S-Bahn-Station Poppenbüttel (ca. 10 Min.), oder über Duvenstedt zur U-Bahn-Station Ohlstedt (ca. 15 Min.).
Eine Kita sowie ein Jugendzentrum befinden sich in ca. 1 km Entfernung; Grundschulen befinden sich in ca. 3km Entfernung in Lemsahl-Mellingstedt und Duvenstedt, mehrere Gymnasien und eine Stadtteilschule in Poppenbüttel sind in ca. 10 Minuten mit dem Bus erreichbar. In die Hamburger Innenstadt beträgt die Fahrtzeit mit dem PKW etwa 30 Minuten.

Ein echtes Zuhause erbaut sich für ein ganzes Leben. Mit dem Finanzierungsfundament von HYPLIFE lassen wir Ihren Traum Wirklichkeit werden. Bei diesem sehr persönlichen Prozess unterstützen wir Sie bei jedem Schritt. Aus dem Umfeld heraus, indem wir selbst Zuhause sind – in Düsseldorf und Hamburg. Mit gewachsenen Partnerstrukturen, vertrauensvollen, langjährigen Beziehungen zu Banken, einem starken Team und dem ganzheitlichen Blick für Sicherheit, Qualität und Wert.
















